ID CP2248400

Teren Strada Berzei | Autorizatie | langa Hotel Ibis |

ID CP2248400

1,000,000 €

Teren de 426 mp de vânzare
Stirbei Voda, Bucuresti
426 mp

Vă propunem un teren autorizat situat într-o locație premium, pe strada Berzei, în imediata proximitate a hotelului Ibis. Suprafața totală a terenului este de 430 m², iar autorizația de construcție valabilă deschide oportunități semnificative de dezvoltare.

Detalii proiect autorizat:

• Funcțiune: Imobil birouri cu spații comerciale și servicii la parter.

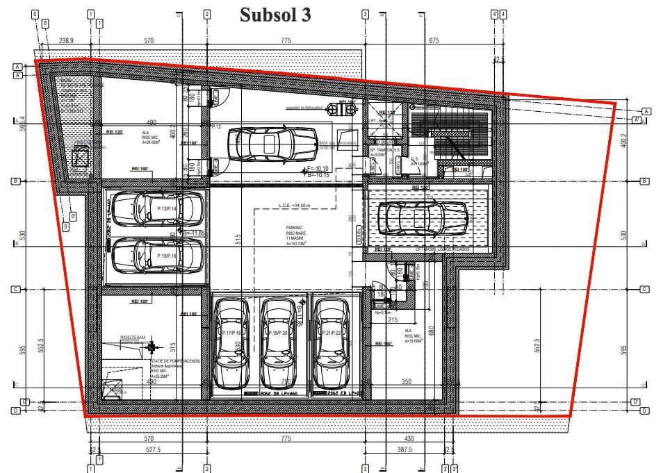
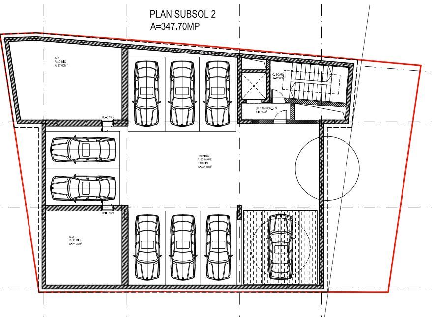
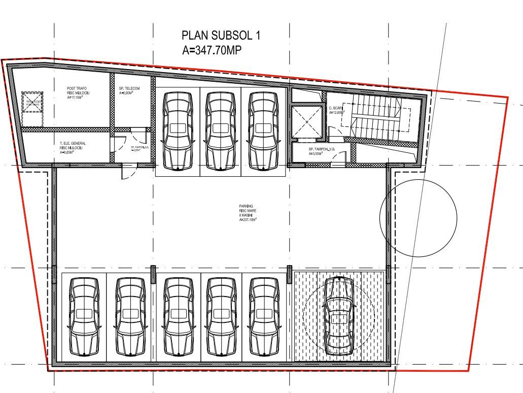
• Regim de înălțime: 3S + P + 4 etaje.

• Suprafață desfășurată supraterană: 1.640 m².

• Suprafață desfășurată subterană: 1.022 m², dintre care un nivel poate fi utilizat ca demisol.

Avantaje cheie:

• Poziție excelentă: Strada Berzei este ideală pentru afaceri care necesită vizibilitate și acces facil, iar proximitatea față de hotelul Ibis adaugă valoare.

• Versatilitate: Locația și structura autorizată sunt perfecte pentru activități precum servicii, spații medicale, clinici private, cabinete medicale sau alte servicii conexe.

• Timp economisit: Autorizația valabilă elimină întârzierile administrative, permițându-vă să începeți rapid construcția și să avansați în proiectul dumneavoastră.

Această proprietate reprezintă o oportunitate de neratat pentru investitori sau antreprenori care doresc să valorifice o locație de top cu potențial ridicat de dezvoltare.

Pentru detalii suplimentare și programarea unei vizionări, nu ezitați să mă contactați!

Citește mai mult

  • Tip teren
    Construcții
  • Suprafață teren
    426 mp
  • Front stradal
    18.0 m
  • Număr fronturi stradale
    1
  • Deschidere la
    Șosea
  • Construcție pe teren
    Da
  • Suprafață construită
    2,062.7 mp
  • Lățime drum acces
    20.0 m
  • Clasificare
    Intravilan
  • Valoare incidență
    601.9
  • Disponibilitate
    Imediat
  • CUT
    3.9
  • POT (%)
    78.0
  • Autorizație de construcție
    Da
  • Număr etaje clădire
    4
  • Număr subsoluri
    2
  • Are demisol
    Da

Facilități

Acces auto
Apă
Canalizare
Curent
Garaj subteran
Gaz
Iluminat stradal
La șosea
Mijloace de transport în comun
Oportunitate de investiții
Străzi asfaltate
Teren împrejmuit
Vedere panoramică
Vedere spre oraș
Claudiu Goian
Manager

0731199766


Solicită chiar acum o vizionare
Nume
Telefon
Email
Sună acum Solicită vizionare
Necesare:

Site-ul nu poate funcționa corect fără aceste cookie-uri. Vezi cookie-urile

Statistică:

Strângem statistici anonime despre voi, vizitatorii unici, pentru a vă îmbunătăți experiența dumneavoastră. Vezi cookie-urile

Marketing:

Pentru a ne promova mai eficient serviciile noastre, folosim cookies pentru a vă identifica și a vă oferi proprietăți și servicii personalizate. Vezi cookie-urile

Acest site folosește cookies, află detalii. Alege ce tipuri de cookies dorești să permitem: