ID CP2141092

Teren 2104 mp | Herastrau | Lacul Baneasa | Super Pozitie |

ID CP2141092

3,156,000 €

Teren de 2,104 mp de vânzare
Herastrau, Bucuresti
2,104 mp

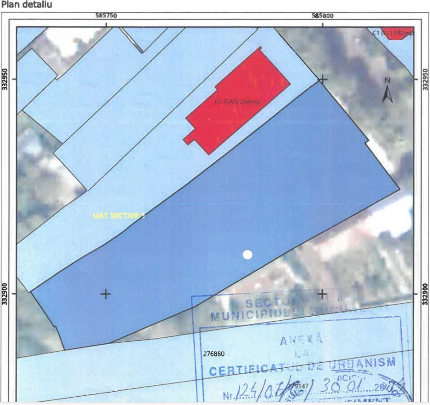
Vă prezentăm un teren deosebit, situat în sectorul 1 al Bucureștiului, pe strada Constantin-Dobrogeanu-Gherea, cu o suprafață generoasă de 2104 m². Acesta beneficiază de o deschidere dublă: 31 m la strada Constantin-Dobrogeanu-Gherea și 11 m la strada Gârlei, oferind flexibilitate și multiple oportunități de dezvoltare.

Terenul este in Zona Urbanistica L1d - locuinţe individuale mici cu parcele cu POT<20% situate în zona culoarelor plantate propuse pentru ameliorarea climatului Capitalei; CUT maxim pentru înălţimi P+2 = 0,7 mp. ADC/mp. teren + în cazul mansardelor, se admite o depăşire a CUT proporţional cu suplimentarea ADC cu maxim 0.6 din AC.

CUT Max: 0,84, respectiv 1767 mpc suprateran (fara balcoane si terase).

Poziționarea sa strategică, în imediata vecinătate a Parcului Herăstrău și cu vedere către Lac, face din acest teren o alegere ideală pentru proiecte imobiliare de prestigiu. Zona de nord a capitalei este recunoscută pentru accesul facil către principalele artere de circulație, precum DN1, și pentru proximitatea față de viitoarea stație de metrou de la aeroportul Băneasa, ceea ce va crește și mai mult atractivitatea terenului.

Cu un potențial imens, acest teren este potrivit pentru o varietate de dezvoltări, fie că vorbim despre proiecte rezidențiale de lux sau spații comerciale. Poziția sa privilegiată și accesul facil la facilități cheie îl transformă într-o oportunitate rară pe piața imobiliară din București.

Citește mai mult

  • Tip teren
    Construcții
  • Suprafață teren
    2,104 mp
  • Front stradal
    42.0 m
  • Număr fronturi stradale
    2
  • Construcție pe teren
    Da
  • Clasificare
    Intravilan
  • Disponibilitate
    Imediat

Facilități

Acces auto
Apă
Canalizare
Curent
Gaz
Iluminat stradal
La șosea
Mijloace de transport în comun
Oportunitate de investiții
Străzi asfaltate
Teren împrejmuit
Vedere panoramică
Vedere spre lac
Vedere spre oraș
Claudiu Goian
Manager

0731199766


Solicită chiar acum o vizionare
Nume
Telefon
Email
Sună acum Solicită vizionare
Necesare:

Site-ul nu poate funcționa corect fără aceste cookie-uri. Vezi cookie-urile

Statistică:

Strângem statistici anonime despre voi, vizitatorii unici, pentru a vă îmbunătăți experiența dumneavoastră. Vezi cookie-urile

Marketing:

Pentru a ne promova mai eficient serviciile noastre, folosim cookies pentru a vă identifica și a vă oferi proprietăți și servicii personalizate. Vezi cookie-urile

Acest site folosește cookies, află detalii. Alege ce tipuri de cookies dorești să permitem: